Die Geschichte der Markt- und Eventhalle Wismar Eine interessante Zeitreise durch die Geschichte der Markt- und Eventhalle
Podeus Fahrzeugbau (1870 - 1933)
Geschichte:
Der Wismarer Fahrzeugbauer Podeus wurde von Heinrich Podeus gegründet. 1894 legte die Familie den Grundstein für das Unternehmen in der Fahrzeugbauindustrie in Wismar.
Produkte:
Podeus war bekannt für die Produktion von Lkw, Pkw und später auch für spezielle Lastkraftwagen und Reisewagen. Die Fahrzeuge erlangten schnell internationalen Ruhm und wurden exportiert.
Technologische Innovationen:
Die Fahrzeuge zeichneten sich durch technische Innovationen aus, wie z.B. niedrige Tragkraftreifen bei hochbelastbaren Lkw.
Wismarer Wagonfabrik (1894 - 1947)
Gründung:
Die Waggonfabrik Wismar wurde 1894 von Heinrich Podeus und seinem Sohn Paul gegründet.
Entwicklung:
Die Fabrik erweiterte ihre Produktion über die Herstellung von Schienenfahrzeugen hinaus auf die Produktion von Waggons, einschließlich Kühlwagen, Schlafwagen und Straßenbahnwagen.
Wichtige Meilensteine:
1911 wurde die Waggonfabrik in eine Aktiengesellschaft umgewandelt. Während des Ersten Weltkriegs stellte das Unternehmen auch Militärfahrzeuge her und erlangte auch nach dem Krieg einen Ruf für innovative Schienenfahrzeuge, unter anderem mit dem Wismarer Schienenbus, der für seine Leichtbauweise bekannt war.
Schicksal nach dem Zweiten Weltkrieg:
Am 23. März 1936 wurde die Waggonfabrik als Triebwagen- und Waggonfabrik Wismar Aktiengesellschaft aus der EVA wieder ausgegliedert. Während 1926 etwa 1600 Mitarbeiter beschäftigt waren, stieg die Zahl der Beschäftigten bis 1939 auf 1930 Mitarbeiter. Im Zweiten Weltkrieg wurden hauptsächlich Militärfahrzeuge und Triebwagen hergestellt und repariert.
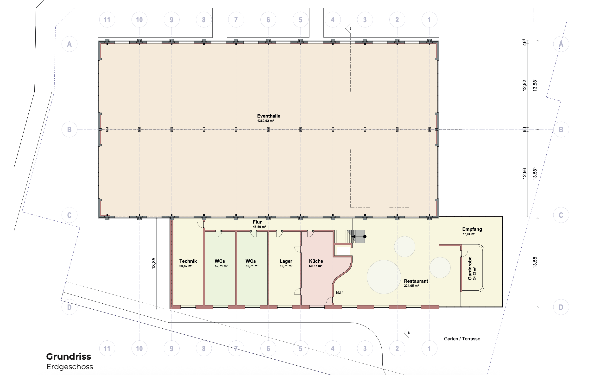
1946 wurde in Wismar ein Schiffsreparaturwerk der Roten Armee gegründet, in das man auch die Waggonfabrik mit einbezog. Nach Übergabe des Schiffsreparaturwerks an die mecklenburgische Landesverwaltung im Januar 1947 wurde die Waggonfabrik Wismar in Volkseigentum überführt und am 22. Juli 1948 aus dem Handelsregister gelöscht. Bis Anfang der 1990er Jahre befanden sich auf dem Gelände das Press- und Schmiedewerk Hein Fink, ein Betriebsteil des VEB Alubau und Metallveredelung Wismar und ein Zweigwerk des Dieselmotorenwerk Rostock. Ein großer Teil der Fabrikanlagen ist heute abgerissen. 2009 wurde die große Fertigungshalle abgebaut und ihre Metallkonstruktion zerlegt und gereinigt. Die 50 × 25 Meter große Halle wurde am Alten Hafen in Wismar wieder aufgebaut. Seit ihrer Eröffnung im April 2011 stehen die etwa 1.300 Quadratmeter für Veranstaltungen zur Verfügung.
Markthalle Wismar (seit 2011)
Lage und Nutzung:
Die Markthalle befindet sich am Alten Hafen in Wismar und dient als zentrale Veranstaltungslocation für Märkte, Messen, Konzerte und andere kulturelle Events.
Veranstaltungen:
Die Halle ist ein beliebter Ort für lokale Veranstaltungen und trägt zur Belebung des Stadtlebens in Wismar bei. Sie wurde 2011 nach dem Abbau einer großen Fertigungshalle der Waggonfabrik in ihrer jetzigen Form eröffnet.
Markt- und Eventhalle Wismar (seit 2017)
Mit dem Gesellschafterwechsel bei der Hansekontor Wismar GmbH wurde die Markthalle in Markt- und Eventhalle Wismar umbenannt. Diese Namensänderung spiegelt den zukünftigen Zweck der Location wider und verdeutlicht, dass wir nicht nur als Markthalle, sondern auch als vielseitige Eventlocation fungieren.
Die Markt- und Eventhalle Wismar bietet Raum für eine Vielzahl von Veranstaltungen, von Messen und Märkten bis hin zu Konzerten und Feierlichkeiten. Wir freuen uns darauf, unsere Vision für diese aufregende Location mit Ihnen zu teilen und unvergessliche Erlebnisse zu schaffen. Besuchen Sie uns und entdecken Sie, was die Markt- und Eventhalle Wismar alles zu bieten hat!
Markt- und Eventhalle Wismar (seit 2023)
Im Jahr 2023 wurde die Markthalle von der Hansestadt Wismar an die Markthalle Wismar GmbH verkauft. Mit diesem Verkauf ging die öffentliche Nutzung sowie der Umbau und die Erweiterung zur modernen Veranstaltungsstätte in private Hände über.
Die Markthalle Wismar GmbH investiert derzeit in die Planung von Maßnahmen zum Schallschutz, zur Wärmedämmung und Heizungsoptimierung sowie in weitere Umbauarbeiten, die eine ganzjährige Nutzung der Halle ermöglichen.
Hinter der Markthalle Wismar GmbH steht die Spiegelberg Immobilien GmbH (eine 100%ige Tochter der HWLeasing GmbH) und Gunnar Hampel, der als 100%iger Gesellschafter der Hansekontor Wismar GmbH agiert. Durch diese Neustrukturierung wurde der langjährige Pächter der Immobilie zum Miteigentümer, was das Ziel verfolgt, die Markt- und Eventhalle Wismar noch vielseitiger und attraktiver zu gestalten.
Wir freuen uns auf die kommenden Entwicklungen und darauf, Ihnen bald eine moderne und einladende Veranstaltungsstätte präsentieren zu können!
[ Website der Markthalle Wismar GmbH ] [ Projektunterlagen zur Erweiterung, Umbau und Sanierung ]
Fazit
Die Geschichte von Podeus und der Wismarer Wagonfabrik ist ein bedeutender Teil der industriellen Entwicklung in Wismar, die zu innovativen Fertigungsprozessen und einem internationalen Markt sorgte. Die Markthalle Wismar hingegen stellt eine wichtige kulturelle Institution dar, die das soziale Leben in der Stadt fördert. Zusammen zeigen diese drei Elemente die industrielle und kulturelle Vielfalt der Stadt Wismar sowie ihre historische Entwicklung.
Für genauere Informationen und zusätzliche Details, könnten lokale Archive oder Geschichtsvereine in Wismar sehr hilfreich sein.
Quellen:
[1] https://de.wikipedia.org/wiki/Waggonfabrik_Wismar
[2] https://en.wikipedia.org/wiki/Waggonfabrik_Wismar
[3] https://wismar-tv.de/wismarer-fahrzeugbauer-podeus-industriegeschichte-mit-weltweiter-ausstrahlung/
Veranstaltungsvorschau Kommende Veranstaltungen in der Markt- und Eventhalle Wismar
Sie sind bereits bei Hansekontor-Newsletter registriert. Möchten Sie Ihr Abonnement ändern oder kündigen? Klicken Sie hier!











